Lot 4 Lake of Isles RoadNorth Stonington, CT 06359
Due to the health concerns created by Coronavirus we are offering personal 1-1 online video walkthough tours where possible.




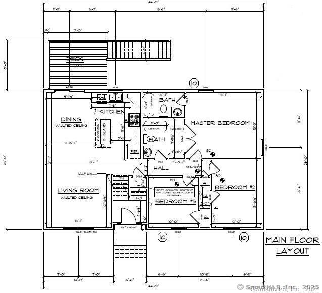
SIMILAR TO BE BUILT - New Construction! Welcome to Golf View Estates. This 3-bedroom, 3 full bath Home will offer approximately 1,700 sf of living space on a 0.28-acre lot. This home will feature a thoughtfully designed open layout, including deck access from the dining room for easy indoor and outdoor living. The primary bedroom will include a private full bath for comfort and privacy. The finished lower level will provide a spacious family room, an additional full bath, a laundry room, and direct access to the under house 2 car garage. Additional highlights include central air, ridge vents for improved ventilation, and energy efficient Thermopane windows. Conveniently located near Lake of Isles Golf Course in a desirable setting. Town assessment will be assessed, and taxes will be calculated by the Town at completed value.
| 3 weeks ago | Listing updated with changes from the MLS® | |
| 3 weeks ago | Listing first seen on site |
The data relating to real estate for sale on this website appears in part through the SMARTMLS Internet Data Exchange program, a voluntary cooperative exchange of property listing data between licensed real estate brokerage firms, and is provided by SMARTMLS through a licensing agreement. Listing information is from various brokers who participate in the SMARTMLS IDX program and not all listings may be visible on the site. The property information being provided on or through the website is for the personal, non-commercial use of consumers and such information may not be used for any purpose other than to identify prospective properties consumers may be interested in purchasing. Some properties which appear for sale on the website may no longer be available because they are for instance, under contract, sold or are no longer being offered for sale. Property information displayed is deemed reliable but is not guaranteed. Copyright 2026 SmartMLS, Inc.
Last checked: 2026-02-06 01:04 AM UTC.
Did you know? You can invite friends and family to your search. They can join your search, rate and discuss listings with you.