70 State Route 37 RouteNew Fairfield, CT 06812
Due to the health concerns created by Coronavirus we are offering personal 1-1 online video walkthough tours where possible.


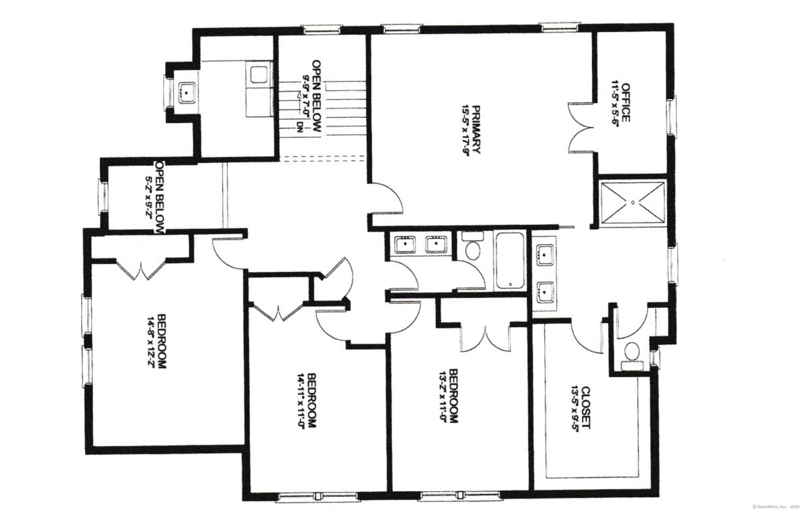
Welcome to this stunning new construction Colonial-style home, perfectly blending modern convenience with timeless charm. Situated on over an acre of land, this property has the space and flexibility you've been searching for. Step into an open-concept main level designed for effortless living and entertaining (9ft ceilings). The kitchen, with a walk-in pantry, dining area, and great room featuring a cozy gas fireplace and sliders to the back deck, is the heart of this home. Customization awaits with generous allowances for GE Cafe appliances, countertops, cabinets, lighting fixtures, and hardware, allowing you to create your dream kitchen and baths. An additional office on the main level provides a private and functional workspace. Upstairs, the well-thought-out layout includes four spacious bedrooms, including a luxurious primary suite (8ft ceilings). The primary suite boasts a full bath with a private toilet room, a walk-in closet, and a extra office space. The upper-level laundry room adds convenience to your daily routine. A 2-car garage completes this remarkable home, offering modern amenities and exceptional design on a picturesque lot. Don't miss the opportunity to make this customizable new construction your forever home!
| 3 months ago | Listing updated with changes from the MLS® | |
| 4 months ago | Status changed to Active Under Contract | |
| 4 months ago | Listing first seen on site |
The data relating to real estate for sale on this website appears in part through the SMARTMLS Internet Data Exchange program, a voluntary cooperative exchange of property listing data between licensed real estate brokerage firms, and is provided by SMARTMLS through a licensing agreement. Listing information is from various brokers who participate in the SMARTMLS IDX program and not all listings may be visible on the site. The property information being provided on or through the website is for the personal, non-commercial use of consumers and such information may not be used for any purpose other than to identify prospective properties consumers may be interested in purchasing. Some properties which appear for sale on the website may no longer be available because they are for instance, under contract, sold or are no longer being offered for sale. Property information displayed is deemed reliable but is not guaranteed. Copyright 2026 SmartMLS, Inc.
Last checked: 2026-01-21 04:31 AM UTC.
Did you know? You can invite friends and family to your search. They can join your search, rate and discuss listings with you.