Fieldstone Commons - verification in progress8 Fieldstone Court 8Bethel, CT 06801
Due to the health concerns created by Coronavirus we are offering personal 1-1 online video walkthough tours where possible.




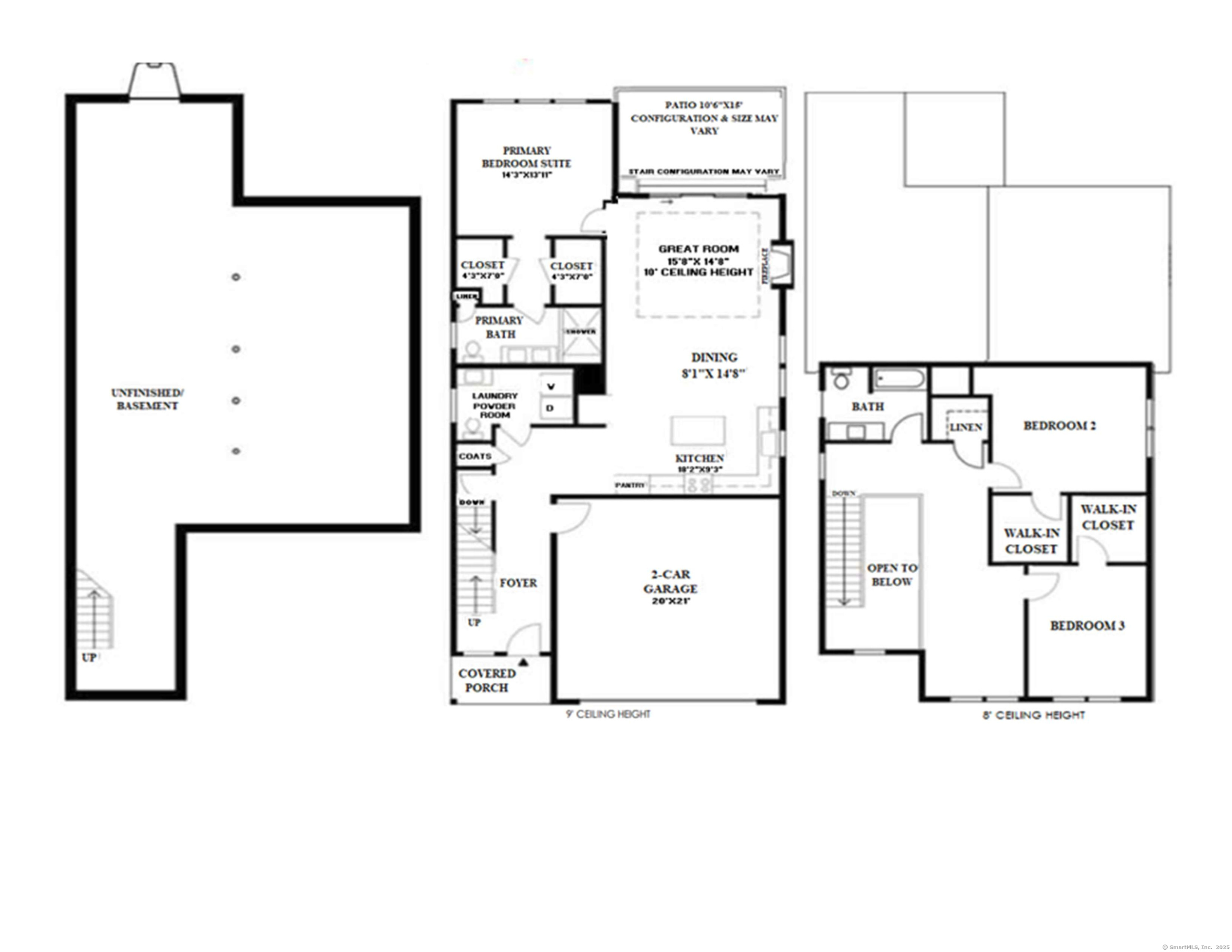
Introducing Phase 3 Fieldstone Commons. A Spectacular, newly constructed community that offers a low-maintenance lifestyle and energy conscious designs. Stand alone homes offering quality construction with high end features. 8 Fieldstone Court is currently under construction with a completion date spring 2026. This unit offers 2,166 Square Feet with open floor-plan. Stunning 2 story entry with open rail staircase leads to a custom kitchen and great room with tray ceiling, gas log fireplace and triple window sliding door to a private Nicoloc Paver patio. 4" Oak hardwood floors throughout. Main level Primary bedroom with 2 large walk-in closets and large bathroom with double sinks and walk-in shower. Upstairs has 2 additional bedrooms with large walk-in closets and an open loft for office or sitting area. Quality finishes throughout, efficient propane hot air heat with central A/C. This home also has a Spacious 2 Car Garage and a Full basement with the option to finish for an additional 686 square feet of space. Home is currently under construction. There is still time for you to customize the finishes! Convenient and central location off Stony Hill Road. Walking distance to restaurants and retail. Just minutes from Exits 8 and 9 on Interstate 84. Come see all that this new community has to offer! Fieldstone Commons A common interest community. Photos are from a similar unit in the same complex and may contain upgraded finishes. Estimated occupancy spring 2026
5 hours ago | Listing updated with changes from the MLS® | |
2 weeks ago | Listing first seen on site |

The data relating to real estate for sale on this website appears in part through the SMARTMLS Internet Data Exchange program, a voluntary cooperative exchange of property listing data between licensed real estate brokerage firms, and is provided by SMARTMLS through a licensing agreement. Listing information is from various brokers who participate in the SMARTMLS IDX program and not all listings may be visible on the site. The property information being provided on or through the website is for the personal, non-commercial use of consumers and such information may not be used for any purpose other than to identify prospective properties consumers may be interested in purchasing. Some properties which appear for sale on the website may no longer be available because they are for instance, under contract, sold or are no longer being offered for sale. Property information displayed is deemed reliable but is not guaranteed. Copyright 2025 SmartMLS, Inc.
Last checked: 2025-10-14 09:00 PM UTC.
Did you know? You can invite friends and family to your search. They can join your search, rate and discuss listings with you.