231 Back RoadWindham, CT 06280
Due to the health concerns created by Coronavirus we are offering personal 1-1 online video walkthough tours where possible.




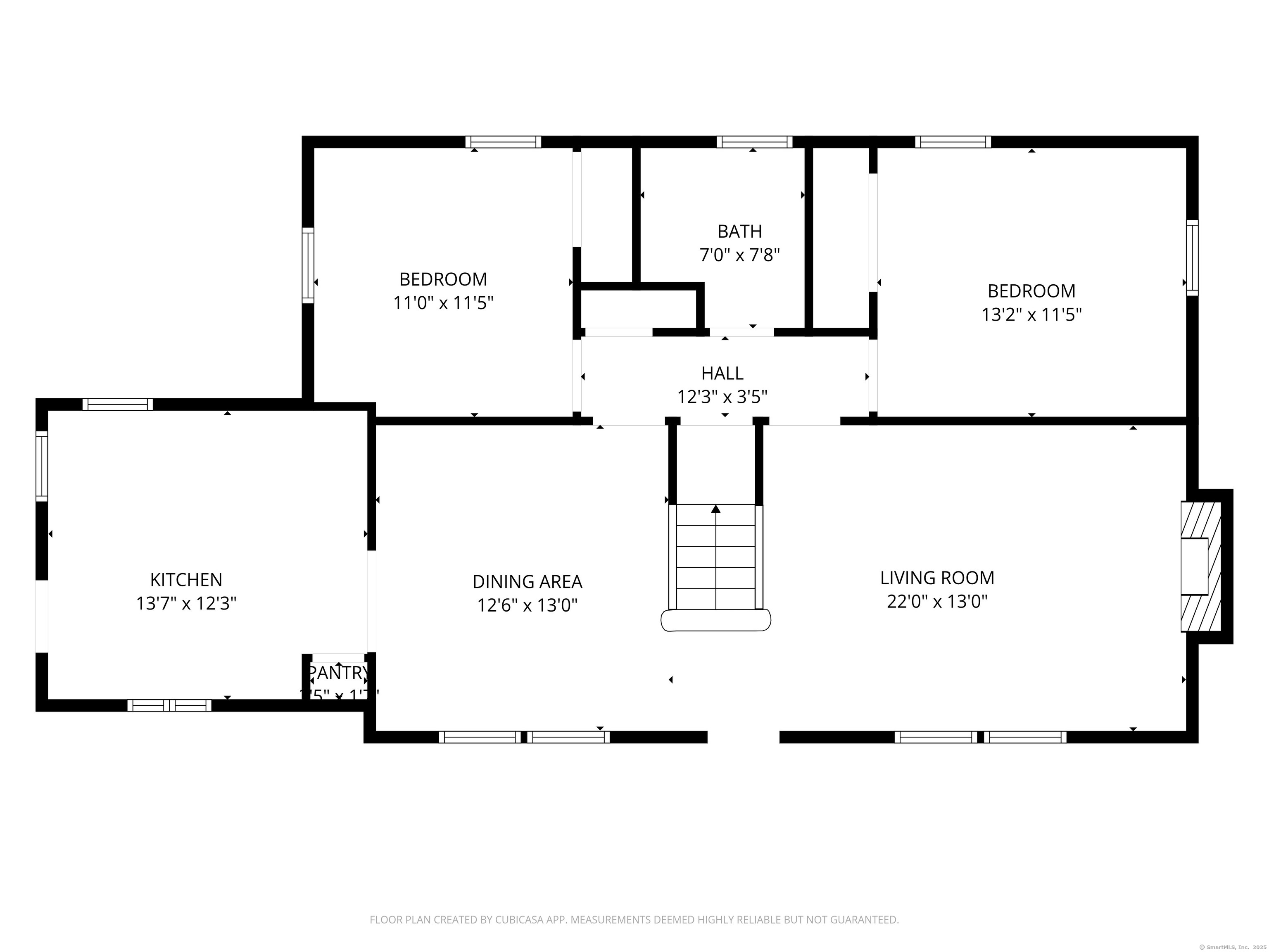
The fraise, "They don't make'em like this anymore" comes to mind as you walk into this classic country cape. Great bones and a thoughtful design in every way. The eat-in kitchen, dining room and living room are large, open and perfect for gatherings. The back hallway leads you to a full bathroom with privacy away from the common areas, along with a bedroom and a big den. So big it could be used as a fourth bedroom. Up the beautiful center staircase, you'll find 2 more generous size bedrooms and another full bathroom. With the immense amount of closets and other storage areas, this home will leave you wanting very little. Make and appointment and come see it to picture yourself enjoying cold nights cuddled up by either fireplace.
| a month ago | Listing updated with changes from the MLS® | |
| a month ago | Status changed to Pending | |
| a month ago | Listing first seen on site |
The data relating to real estate for sale on this website appears in part through the SMARTMLS Internet Data Exchange program, a voluntary cooperative exchange of property listing data between licensed real estate brokerage firms, and is provided by SMARTMLS through a licensing agreement. Listing information is from various brokers who participate in the SMARTMLS IDX program and not all listings may be visible on the site. The property information being provided on or through the website is for the personal, non-commercial use of consumers and such information may not be used for any purpose other than to identify prospective properties consumers may be interested in purchasing. Some properties which appear for sale on the website may no longer be available because they are for instance, under contract, sold or are no longer being offered for sale. Property information displayed is deemed reliable but is not guaranteed. Copyright 2025 SmartMLS, Inc.
Last checked: 2025-12-08 07:35 AM UTC.
Did you know? You can invite friends and family to your search. They can join your search, rate and discuss listings with you.