315 Diane DriveSouth Windsor, CT 06074
Due to the health concerns created by Coronavirus we are offering personal 1-1 online video walkthough tours where possible.




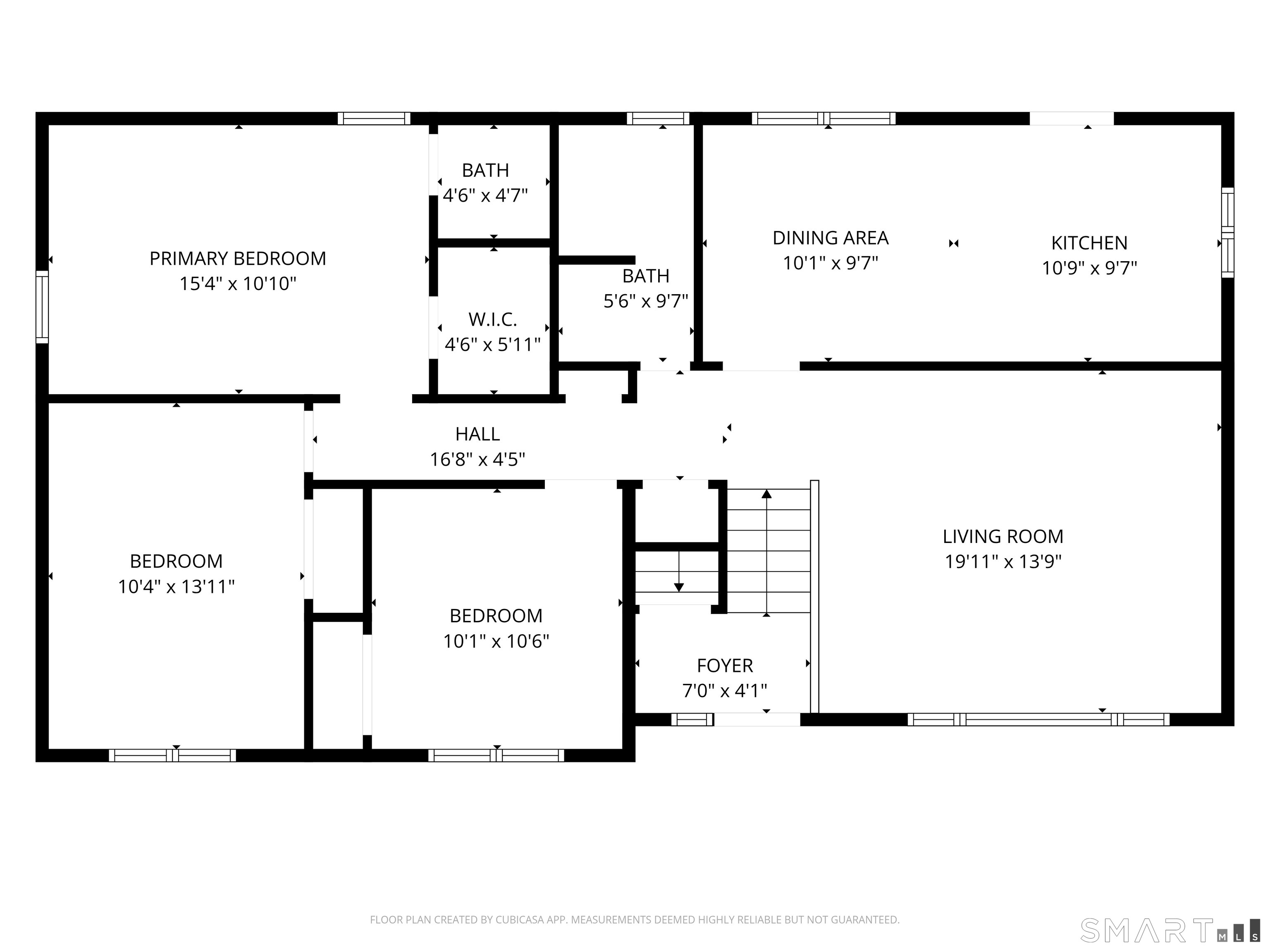
HIGHEST/BEST OFFERS DUE BY SUNDAY 3/8 AT 5PM. Great South Windsor neighborhood location for this 3 bed, 1 1/2 bath raised ranch home. Home is in need of extensive updating / TLC but is priced accordingly and offers tremendous upside. Truly an AMAZING OPPORTUNITY for the right buyer who is willing to restore this home to its full potential. Ideal for investor, handyman, contractor, or buyer looking to update this home to their personal preferences. Half bath could easily be converted to SECOND FULL BATH. Large, level .45 acre lot. Situated in the sought after ORCHARD HILL ELEMENTARY SCHOOL DISTRICT. Close proximity to Tri City shopping, I-84, Evergreen Walk, Buckland Mall, Costco, and Whole Foods.
| yesterday | Listing updated with changes from the MLS® | |
| 3 days ago | Listing first seen on site |
The data relating to real estate for sale on this website appears in part through the SMARTMLS Internet Data Exchange program, a voluntary cooperative exchange of property listing data between licensed real estate brokerage firms, and is provided by SMARTMLS through a licensing agreement. Listing information is from various brokers who participate in the SMARTMLS IDX program and not all listings may be visible on the site. The property information being provided on or through the website is for the personal, non-commercial use of consumers and such information may not be used for any purpose other than to identify prospective properties consumers may be interested in purchasing. Some properties which appear for sale on the website may no longer be available because they are for instance, under contract, sold or are no longer being offered for sale. Property information displayed is deemed reliable but is not guaranteed. Copyright 2026 SmartMLS, Inc.
Last checked: 2026-03-07 04:35 AM UTC.
Did you know? You can invite friends and family to your search. They can join your search, rate and discuss listings with you.