Save
Ask
Tour
Hide
$145,000
1 Day On Site
7 Circle DriveWindham, CT 06256
For Sale|Mobile Home|Active
3
Beds
2
Total Baths
2
Full Baths
1,152
SqFt
$126
/SqFt
2002
Built
County:
Windham
Listing courtesy of Karen Martin of Century 21 AllPoints Realty Office Phone: (860) 228-9425
Broker Contact: (860) 559-8903
Due to the health concerns created by Coronavirus we are offering personal 1-1 online video walkthough tours where possible.
Call Now: 1-860-573-4349
Is this the listing for you? We can help make it yours.
1-860-573-4349



Save
Ask
Tour
Hide
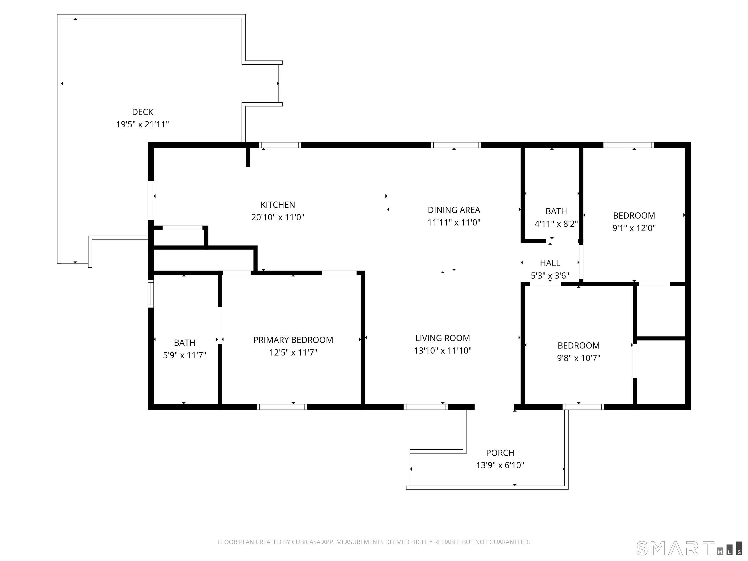
Open Floor plan, 1152 SF, 3 bedrooms, 2 full baths. Vaulted ceilings, Kitchen offers plenty of cabinet and counter spaces, breakfast bar, dining area, Primary bedroom with full bath and walk in closet, 2 additional bedrooms both with walk in closets, Living room with vaulted ceiling, propane fireplace and is open to dining area and kitchen. Covered deck/porch, large private yard, storage shed. Central air. Monthly $853. Ground lease includes trash pickup, water, and sewer. Close to Windham Airport, Shopping, highways, UCONN, Golf course, recreational parks and hiking.
Save
Ask
Tour
Hide
Listing Snapshot
Price
$145,000
Days On Site
1 Day
Bedrooms
3
Inside Area (SqFt)
1,152 sqft
Total Baths
2
Full Baths
2
Partial Baths
N/A
Lot Size
N/A
Year Built
2002
MLS® Number
24156396
Status
Active
Property Tax
$1,937
HOA/Condo/Coop Fees
$853 monthly
Sq Ft Source
N/A
Friends & Family
Recent Activity
| 23 hours ago | Listing updated with changes from the MLS® | |
| yesterday | Listing first seen on site |
General Features
Parking
AsphaltDriveway
Parking Spaces
2
Property Sub Type
Mobile Home
Sewer
Public Sewer
SqFt Total
1152
Style
Mobile Home
Water Source
Public
Zoning
M1
Interior Features
Appliances
DishwasherDryerMicrowaveRangeOvenRefrigeratorWasherElectric Water Heater
Basement
None
Cooling
Ceiling Fan(s)Central Air
Fireplace
Yes
Fireplaces
1
Heating
PropaneForced Air
Interior
Open Floorplan
Master Bathroom
Level - Main
Save
Ask
Tour
Hide
Exterior Features
Construction Details
Vinyl Siding
Patio And Porch
Deck
Roof
Asphalt
Windows/Doors
Storm Door(s)
Community Features
Association Dues
853
HOA Fee Frequency
Monthly
Schools
School District
Unknown
Elementary School
Per Board of Ed
Middle School
Unknown
High School
Per Board of Ed
Listing courtesy of Karen Martin of Century 21 AllPoints Realty Office Phone: (860) 228-9425
Broker Contact: (860) 559-8903
The data relating to real estate for sale on this website appears in part through the SMARTMLS Internet Data Exchange program, a voluntary cooperative exchange of property listing data between licensed real estate brokerage firms, and is provided by SMARTMLS through a licensing agreement. Listing information is from various brokers who participate in the SMARTMLS IDX program and not all listings may be visible on the site. The property information being provided on or through the website is for the personal, non-commercial use of consumers and such information may not be used for any purpose other than to identify prospective properties consumers may be interested in purchasing. Some properties which appear for sale on the website may no longer be available because they are for instance, under contract, sold or are no longer being offered for sale. Property information displayed is deemed reliable but is not guaranteed. Copyright 2026 SmartMLS, Inc.
Last checked: 2026-03-07 05:44 AM UTC.
The data relating to real estate for sale on this website appears in part through the SMARTMLS Internet Data Exchange program, a voluntary cooperative exchange of property listing data between licensed real estate brokerage firms, and is provided by SMARTMLS through a licensing agreement. Listing information is from various brokers who participate in the SMARTMLS IDX program and not all listings may be visible on the site. The property information being provided on or through the website is for the personal, non-commercial use of consumers and such information may not be used for any purpose other than to identify prospective properties consumers may be interested in purchasing. Some properties which appear for sale on the website may no longer be available because they are for instance, under contract, sold or are no longer being offered for sale. Property information displayed is deemed reliable but is not guaranteed. Copyright 2026 SmartMLS, Inc.
Last checked: 2026-03-07 05:44 AM UTC.
Neighborhood & Commute
Source: Walkscore
Save
Ask
Tour
Hide
Did you know? You can invite friends and family to your search. They can join your search, rate and discuss listings with you.