Lot 33 Oak DriveMansfield, CT 06250
Due to the health concerns created by Coronavirus we are offering personal 1-1 online video walkthough tours where possible.




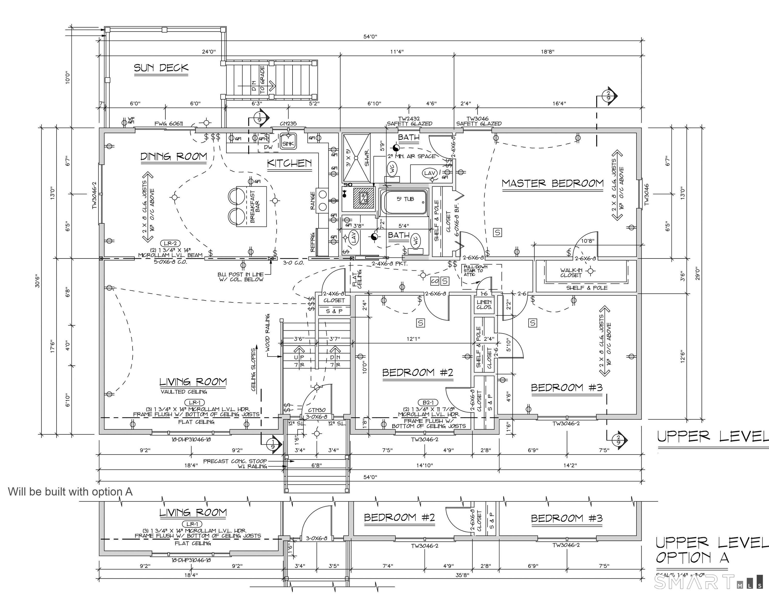
A rare find, a great price on a superb quality custom built new home! This new raised ranch home, 3 bedrooms, 2 full baths, 2 car garage, central air, efficient warm air heat to be built with your choices of finishes, The is centrally located is close to shopping, UConn and ECSU! There is time to make many custom choices that will make this your dream home. This spacious, home checks off all the important key features desired in a new home. This home will be built with opposing front gables. Stepping from the foyer up to the flowing open floor plan is enhanced with natural light from the several large windows and you see into the expansive living room, dining room and kitchen. The kitchen has an island that seats three. A raised 10' x 12' deck is adjacent to the dining area. The slider from the dining area leads to a raised deck. The lower level has a laundry area and a 2 car garage with ample unfinished space for storage or a for a future additional room and half bath. (Additional approx. 600sf plus half bath can be finished for an additional $30,000 giving approx. 2400sf of living space) The primary bedroom suite features a walk in shower, granite vanity, and two additional bedrooms with separate full bath. This home has all the amenities like main living area hardwood flooring, central air, high efficiency propane heat with humidifier, recessed interior lighting and exterior lighting, kitchen granite countertops, premium kitchen cabinets, finishes and much more!
| a month ago | Listing updated with changes from the MLS® | |
| a month ago | Listing first seen on site |
The data relating to real estate for sale on this website appears in part through the SMARTMLS Internet Data Exchange program, a voluntary cooperative exchange of property listing data between licensed real estate brokerage firms, and is provided by SMARTMLS through a licensing agreement. Listing information is from various brokers who participate in the SMARTMLS IDX program and not all listings may be visible on the site. The property information being provided on or through the website is for the personal, non-commercial use of consumers and such information may not be used for any purpose other than to identify prospective properties consumers may be interested in purchasing. Some properties which appear for sale on the website may no longer be available because they are for instance, under contract, sold or are no longer being offered for sale. Property information displayed is deemed reliable but is not guaranteed. Copyright 2026 SmartMLS, Inc.
Last checked: 2026-04-12 04:01 AM UTC.
Did you know? You can invite friends and family to your search. They can join your search, rate and discuss listings with you.