230 Bailey Woods RoadBrooklyn, CT 06234
Due to the health concerns created by Coronavirus we are offering personal 1-1 online video walkthough tours where possible.




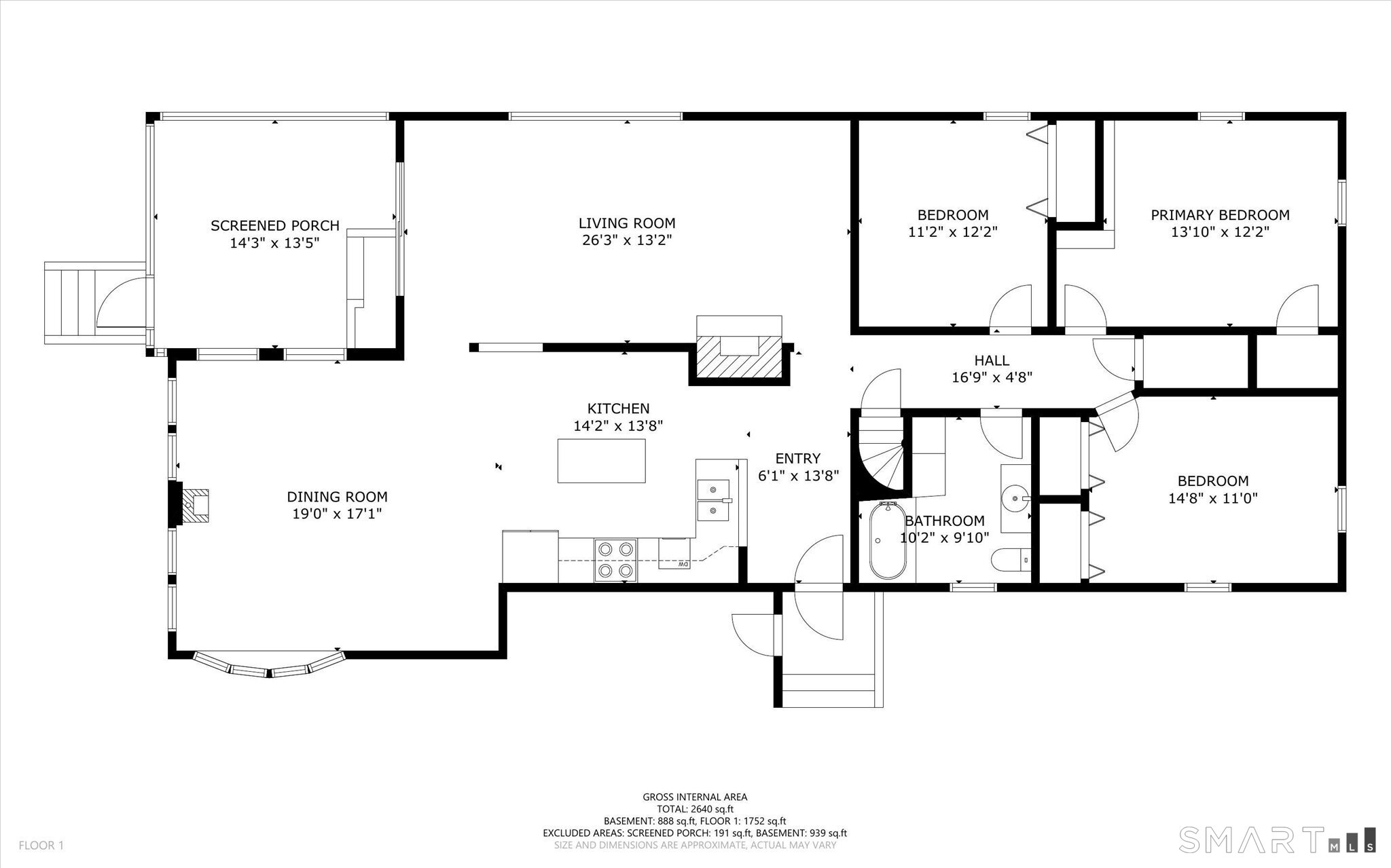
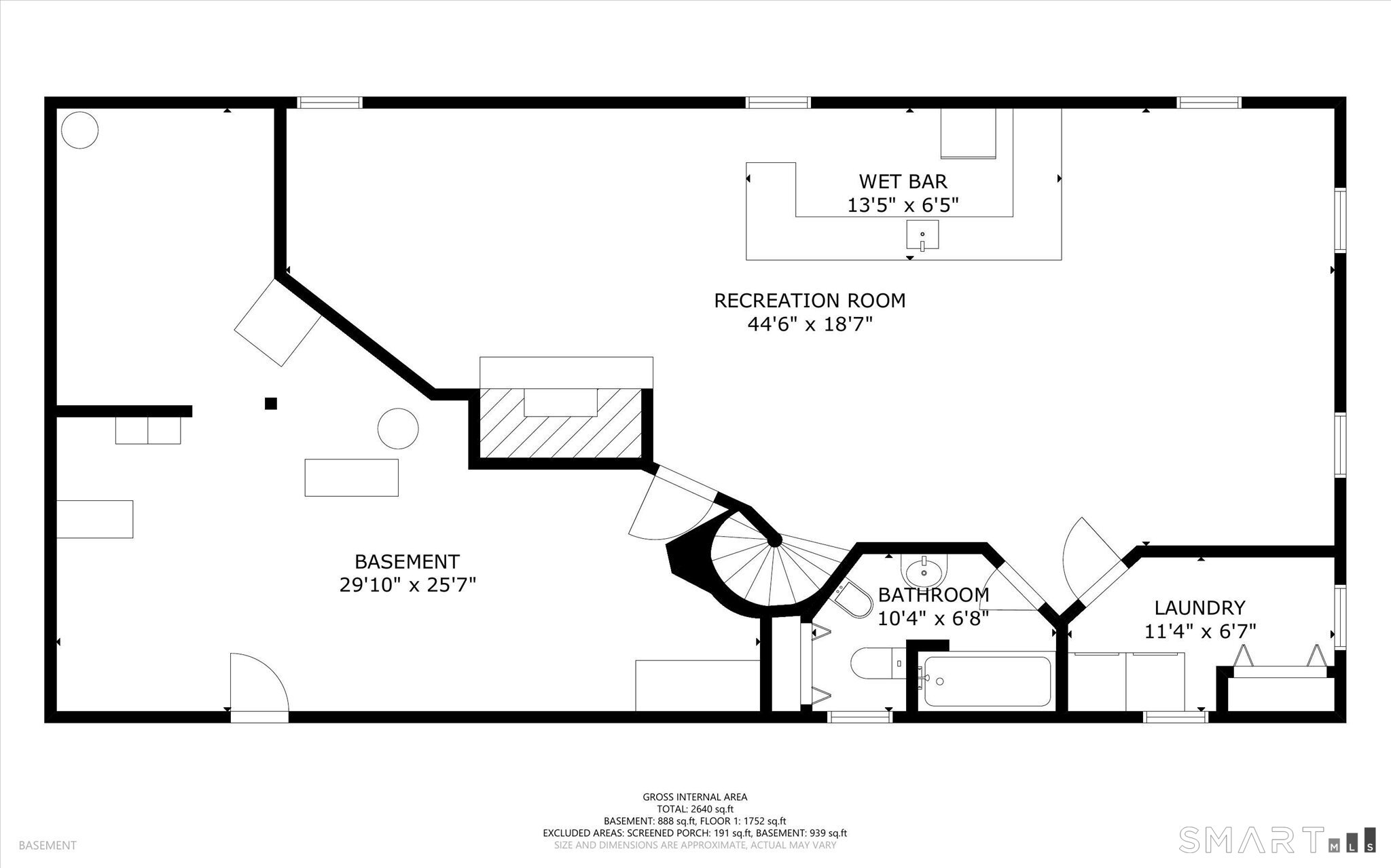
Welcome to this beautifully maintained ranch nestled on a private, wooded lot in beautiful Brooklyn, CT-offering the perfect blend of comfort, space, and convenience. Don't let the exterior fool you-this is not a drive-by home. Step inside to truly appreciate all the space and features it has to offer! The main level showcases gleaming hardwood floors throughout, with a spacious living room filled with natural light and a cozy fireplace-perfect for those New England evenings. Just off the living room, a screened-in porch provides a peaceful space to relax and enjoy the natural surroundings. The dining area features scenic views of the private wooded backyard along with a charming propane-fired stove, adding warmth and character. The well-appointed kitchen offers great functionality and flow, while central air ensures comfort throughout the warmer months. This home features three generously sized bedrooms, along with two full bathrooms for added convenience. The finished lower level offers incredible additional living space, complete with a second fireplace and a full wet bar-ideal for entertaining, hosting gatherings, or creating the ultimate hangout area. You'll also find plenty of storage to meet all your needs.
| 3 days ago | Listing updated with changes from the MLS® | |
| 3 days ago | Status changed to Pending | |
| a week ago | Listing first seen on site |
The data relating to real estate for sale on this website appears in part through the SMARTMLS Internet Data Exchange program, a voluntary cooperative exchange of property listing data between licensed real estate brokerage firms, and is provided by SMARTMLS through a licensing agreement. Listing information is from various brokers who participate in the SMARTMLS IDX program and not all listings may be visible on the site. The property information being provided on or through the website is for the personal, non-commercial use of consumers and such information may not be used for any purpose other than to identify prospective properties consumers may be interested in purchasing. Some properties which appear for sale on the website may no longer be available because they are for instance, under contract, sold or are no longer being offered for sale. Property information displayed is deemed reliable but is not guaranteed. Copyright 2026 SmartMLS, Inc.
Last checked: 2026-04-12 04:17 AM UTC.